专注起重机及物料搬运产品生产
欢迎来厂参观,我们将竭诚为您服务!
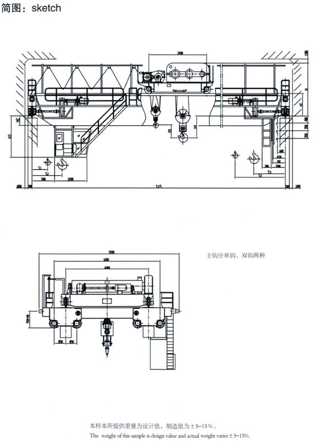
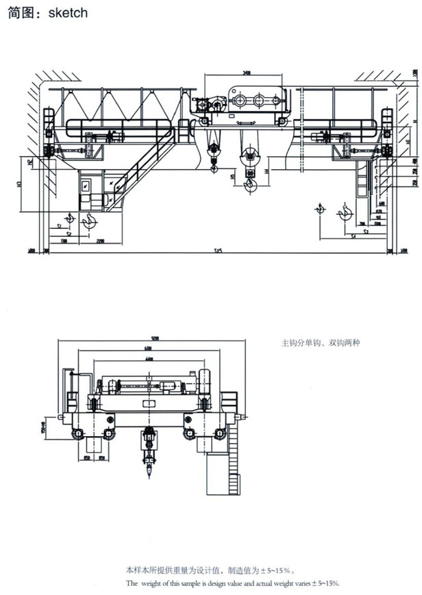
产品类别:桥式起重机
产品说明:
联系人:咨询投诉售后电话
电话:15137376663
地址:河南封丘起重工业园区1号
PRODUCT INTRODUCTION
PRODUCT ADVANTAGES
专注的研发技术人员
研究产品种类多种多样
产品可长时间抵抗压力
拥有完善的售后服务体系
RELEVANT NEWS
本公司就本网站所展示的信息在此声明:极限词用词及功能性用词失效声明新广告法规定所有页面不得出现用词和功能性用词。并在此郑...
公司响应 “河南质量信用A等工业企业”的申请活动,为了配合申请活动举办了一场“质量一定要坚如磐石”的会议。于201...
5月末,公司质检部成立了由质检部成员、班组长及一线员工等20人组成的质量控制小组,小组成员在公司文化广场上庄严宣誓,...
MESSAGE
返回顶部
在线客服
15137376663
扫一扫 关注我们